
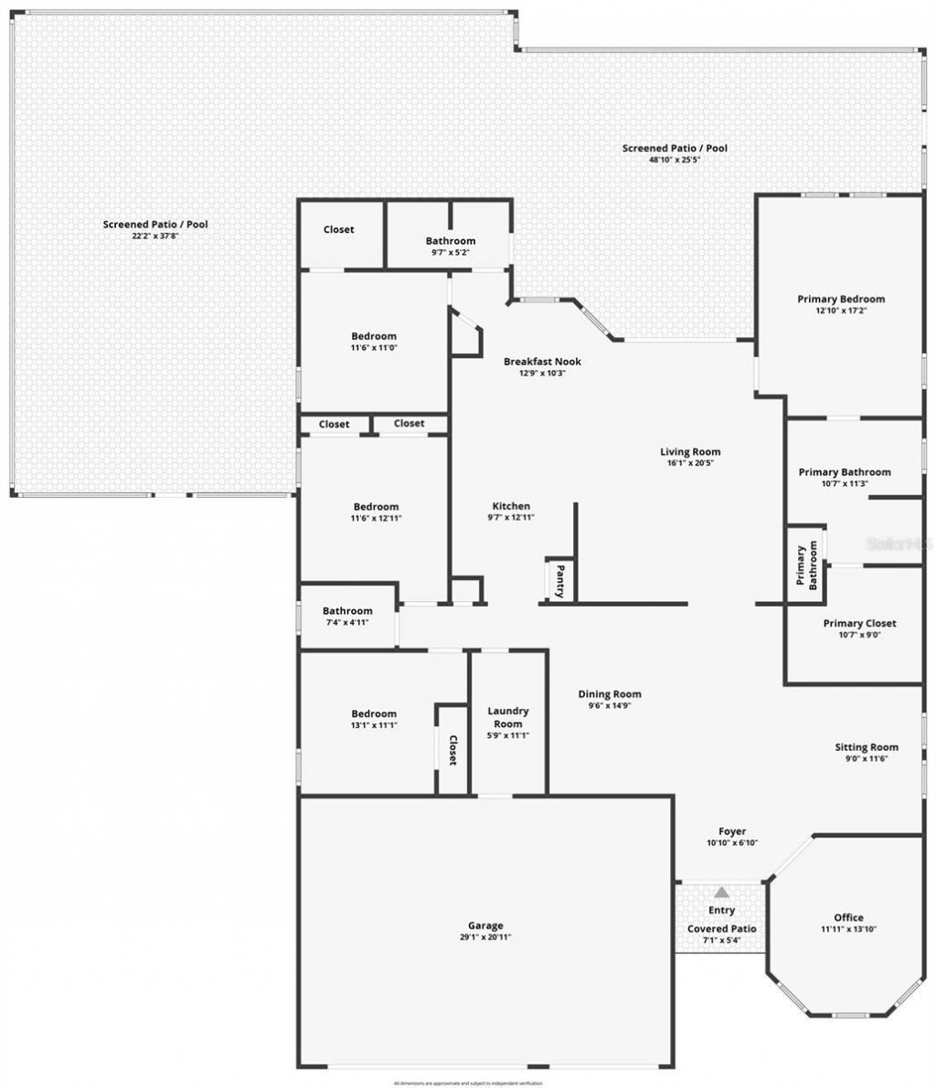
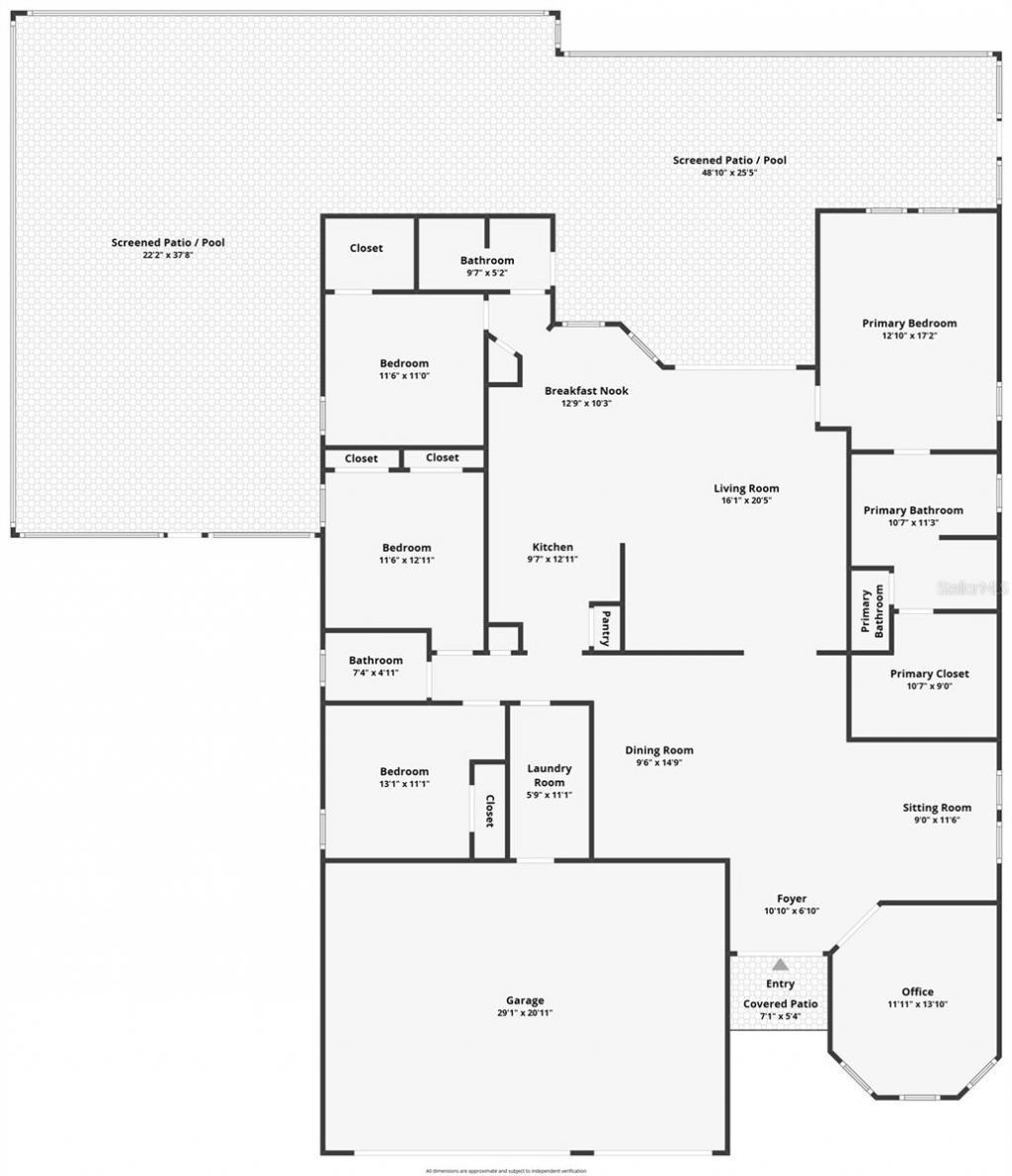
Long afternoons by the pool, dinner under the lanai, and quiet mornings surrounded by greenery define the lifestyle at 6914 44th Ct E. The expansive screened lanai wraps around the back and side of the home, creating multiple inviting spaces to relax and gather. Along the back, a covered dining area and comfortable seating space overlook the lush yard, while the fenced backyard adds privacy and room to play, garden, or let pets roam. It is the kind of setting that makes slow mornings with coffee...Long afternoons by the pool, dinner under the lanai, and quiet mornings surrounded by greenery define the lifestyle at 6914 44th Ct E. The expansive screened lanai wraps around the back and side of the home, creating multiple inviting spaces to relax and gather. Along the back, a covered dining area and comfortable seating space overlook the lush yard, while the fenced backyard adds privacy and room to play, garden, or let pets roam. It is the kind of setting that makes slow mornings with coffee and peaceful evenings outdoors feel effortless. As the lanai continues around the side of the home, it opens to a heated pool and spa with sun shelf, creating a private retreat for swimming, lounging, and enjoying the Florida sunshine. The nearby pool bath is easily accessible from the lanai, offering added convenience for poolside living and entertaining. Inside, a grand double door entry with tall ceilings and a transom window fills the foyer with natural light while travertine floors flow through the main living spaces, bringing warmth and timeless character. The thoughtfully designed layout includes 4 bedrooms, 3 bathrooms, and a versatile den, along with both a main living room and a separate sitting room that provide flexibility for entertaining, relaxing, or working from home. The front two bedrooms and nearby bathroom are positioned in a way that could easily be converted into a private in law suite or guest retreat. The kitchen features a customized pantry closet and wine fridge that add both function and convenience to everyday living. The laundry room is outfitted with custom built in cabinets that offer exceptional storage and organization. Major updates offer peace of mind including a new roof being installed prior to closing and an A/C replaced in 2021, plus the electrical panel includes a generator lockout for future readiness. A spacious three car garage with epoxy floors provides plenty of room for vehicles, storage, or hobbies. Oakleaf Hammock is known for its oak tree lined streets and peaceful atmosphere that feels worlds away from the bustle of daily life, yet this home sits just 2.5 miles from I-75 and perfectly between St Petersburg and Sarasota, placing beaches, dining, shopping, and airports within easy reach. Homes that offer this blend of outdoor living, privacy, and convenience are becoming increasingly hard to find in the surrounding area, making this one worth experiencing in person.
View MoreCourtesy of
Agency Name: INNOVATE REAL ESTATE
Agency Contact: 941-202-1723
Agent Name: Danielle Dustman
Presented by
Agent Name: Diana Fahmie
Agent Phone: 954.815.8213
Agency Title: The Keyes Company
Send an email with a link to
6914 44th Court E, Ellenton, FL 34222.
Email 6914 44th Court E, Ellenton, FL 34222
Thank you for your inquiry! As a thank you, we have a Special Mortgage Offer for You.
We would like to provide you a free, no-obligation, home loan pre-approval review.